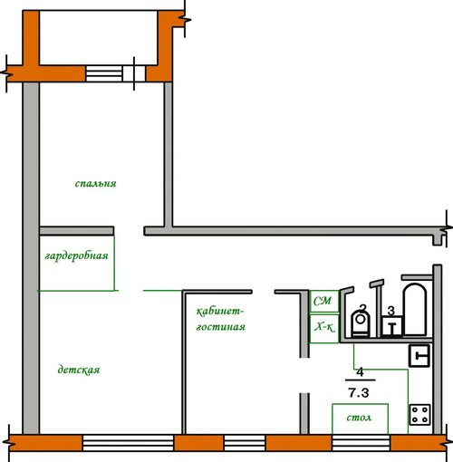
Перепланировка трехкомнатной квартиры в хрущевке – это отличная возможность улучшить функциональность и комфорт проживания. В данной статье вы найдете много фотографий и примеров реальных перепланировок, которые помогут вам воплотить свои идеи в жизнь.




































Преимущества перепланировки
Перепланировка квартиры в хрущевке может принести множество преимуществ. Во-первых, вы сможете оптимально использовать имеющееся пространство и создать функциональные зоны для разных нужд. Во-вторых, перепланировка позволит вам улучшить освещение и вентиляцию помещений, повысить уровень комфорта проживания. Наконец, это отличный способ изменить интерьер и придать квартире свежий и современный вид.